自鎖千斤頂的設計是液壓原理與機械原理的完美結合,在活塞桿整個沖程范圍內都有螺紋,完全頂升后,可將止退擋圈旋下,直至頂住缸體,由止退擋圈及缸體受力,從而可以撤去油泵,實現千斤頂的自鎖,特別適用于砼梁及砼橋的持續支撐及測試作業。螺母自鎖使負載更安全,能經受住偏載荷達千斤頂額定承載能力的10%,溢流孔兼有限制行程的功能,它主要適用于發電廠、石油化工、機械制造安裝以及曲線橋定位的機械鎖定,該產品具有體積小、使用方便、操作靈活、工作省力、攜帶方便、節省安裝時間、提高工作效率等特點。
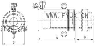
薄型螺母鎖定液壓千斤頂
薄型螺母鎖定千斤頂適合于要求活塞長時間伸展持續支撐負荷的作業,高效的特性和機械承載的安全性。例如混凝土構件澆注和橋梁架設的支撐。單作用,活塞負荷復位設計,有貫穿整個行程長度的螺紋線與整個鎖環螺紋相配合。操作非常簡單,即先舉起負荷,然后旋緊鎖環,使其與千斤頂體緊縮為一體,再釋放液體壓力,依靠機械力量支撐負荷。
主要參數
- 承載能力
- 60~500T
- 工作行程
- 45~80T
- 本體高度
- 125~192mm
薄型螺母鎖定液壓千斤頂特點:
- 所有型號只能垂直作業,可選配合適的標準斜面承座以減少千斤頂的側壓風險;
- 單作用,活塞負載復位設計,螺母鎖定使負載更安全;
- 螺紋活塞有耐磨鍍層,缸體內側鍍硬鉻;
- 特別的復合材料涂層使耐磨能力更強,摩擦力更;
- 可承受額定載荷能力10%的偏載;
- 高度極低,適用于空間受限的場合。
薄型螺母鎖定液壓千斤頂技術參數:

| 型 號 | 承載能力 | 工作行程 | 本體高度 | 油缸外徑 | 活塞桿直徑 | 頂帽直徑 | 工作壓力 |
| FY-CLP-60T-50 | 60T | 50 | 125 | 140 | Tr105×4 | 96 | 70MPa |
| FY-CLP-100T-50 | 100T | 50 | 137 | 170 | Tr135×6 | 126 | |
| FY-CLP-100T-80 | 100T | 80 | 170 | 170 | Tr130×6 | 80 | |
| FY-CLP-160T-45 | 160T | 45 | 148 | 220 | Tr170×6 | 150 | |
| FY-CLP-200T-45 | 200T | 45 | 155 | 245 | Tr190×6 | 180 | |
| FY-CLP-250T-45 | 250T | 45 | 159 | 275 | Tr215×6 | 180 | |
| FY-CLP-400T-45 | 400T | 45 | 178 | 355 | Tr265×6 | 210 | |
| FY-CLP-500T-45 | 500T | 45 | 192 | 410 | Tr305×6 | 240 |
薄型螺母鎖定液壓千斤頂應用場合:
薄型螺母鎖定液壓千斤頂用于橋梁同步頂升維修更換橡膠支座,以及機械維修中可做永久支撐
機械式螺母鎖定千斤頂
機械式螺母鎖定千斤頂結合了其他千斤頂的功能,千斤頂機械承載的安全性,適用于要求活塞長時間伸展持續支撐負荷作業。
主要參數
- 承載能力
- 50~1000T
- 工作行程
- 50~500mm
- 本體高度
- 164~945mm
機械式螺母鎖定千斤頂特點:
- 用于提升和機械負荷支撐;
- 螺紋活塞有耐磨鍍層,缸體內壁鍍硬鉻;
- 絕對機械式鎖定負載;
- 高溫烤漆表面耐腐蝕及撞擊;
- 千斤頂起升到指定高度,旋下鎖定螺母即可撤去泵站,從而實現長時間支撐負荷作業。
機械式螺母鎖定千斤頂技術參數:

| 型 號 | 承載能力T | 工作行程MM | 本體高度MM | 油缸外徑MM | 活塞桿直徑MM | 頂帽直徑MM | 工作壓力 |
| FY-CLL-50T-50 | 50T | 50 | 164 | 125 | Tr95×4 | 70 | 70MPa |
| FY-CLL-50T-100 | 50T | 100 | 214 | 125 | Tr95×4 | 70 | |
| FY-CLL-50T-150 | 50T | 150 | 264 | 125 | Tr95×4 | 70 | |
| FY-CLL-50T-200 | 50T | 200 | 314 | 125 | Tr95×4 | 70 | |
| FY-CLL-50T-150-2 | 50T | 250 | 365 | 127 | Tr95×4 | 70 | |
| FY-CLL-50T-300 | 50T | 300 | 415 | 127 | Tr95×4 | 70 | |
| FY-CLL-100T-50 | 100T | 50 | 190 | 170 | Tr130×6 | 80 | |
| FY-CLL-100T-100 | 100T | 100 | 237 | 170 | Tr130×6 | 80 | |
| FY-CLL-100T-100-2 | 100T | 100 | 240 | 170 | Tr130×6 | 80 | |
| FY-CLL-100T-150 | 100T | 150 | 287 | 170 | Tr130×6 | 71 | |
| FY-CLL-100T-200 | 100T | 200 | 337 | 170 | Tr130×6 | 80 | |
| FY-CLL-100T-200-2 | 100T | 200 | 340 | 170 | Tr130×6 | 80 | |
| FY-CLL-100T-260 | 100T | 260 | 400 | 170 | Tr130×6 | 80 | |
| FY-CLL-100T-300 | 100T | 300 | 440 | 170 | Tr130×6 | 80 | |
| FY-CLL-150T-50 | 150T | 50 | 209 | 210 | Tr160×6 | 110 | |
| FY-CLL-150T-100 | 150T | 100 | 259 | 210 | Tr160×6 | 110 | |
| FY-CLL-150T-150 | 150T | 150 | 309 | 210 | Tr160×6 | 110 | |
| FY-CLL-150T-200 | 150T | 200 | 359 | 210 | Tr160×6 | 110 | |
| FY-CLL-150T-250 | 150T | 250 | 409 | 210 | Tr160×6 | 110 | |
| FY-CLL-150T-300 | 150T | 300 | 459 | 210 | Tr160×6 | 110 | |
| FY-CLL-200T-50 | 200T | 50 | 243 | 240 | Tr190×6 | 120 | |
| FY-CLL-200T-150 | 200T | 150 | 343 | 235 | Tr185×6 | 130 | |
| FY-CLL-200T-150-2 | 200T | 150 | 343 | 240 | Tr190×6 | 120 | |
| FY-CLL-200T-200 | 200T | 200 | 393 | 240 | Tr190×6 | 120 | |
| FY-CLL-200T-250 | 200T | 250 | 443 | 240 | Tr190×6 | 120 | |
| FY-CLL-200T-300 | 200T | 300 | 493 | 240 | Tr190×6 | 120 | |
| FY-CLL-250T-50 | 250T | 50 | 249 | 275 | Tr215×6 | 135 | |
| FY-CLL-250T-150 | 250T | 150 | 349 | 275 | Tr215×6 | 135 | |
| FY-CLL-250T-200 | 250T | 200 | 399 | 275 | Tr215×6 | 135 | |
| FY-CLL-250T-300 | 250T | 300 | 499 | 275 | Tr215×6 | 135 | |
| FY-CLL-300T-50 | 300T | 50 | 295 | 310 | Tr240×6 | 150 | |
| FY-CLL-300T-150 | 300T | 150 | 395 | 310 | Tr240×6 | 150 | |
| FY-CLL-300T-200 | 300T | 200 | 445 | 310 | Tr240×6 | 150 | |
| FY-CLL-300T-250 | 300T | 250 | 495 | 310 | Tr240×6 | 150 | |
| FY-CLL-300T-250-2 | 300T | 250 | 495 | 310 | Tr240×6 | 150 | |
| FY-CLL-400T-50 | 400T | 50 | 335 | 350 | Tr265×6 | 170 | |
| FY-CLL-400T-150 | 400T | 150 | 435 | 350 | Tr265×6 | 170 | |
| FY-CLL-400T-200 | 400T | 200 | 485 | 350 | Tr265×6 | 170 | |
| FY-CLL-400T-300 | 400T | 300 | 585 | 350 | Tr265×6 | 170 | |
| FY-CLL-500T-50 | 500T | 50 | 380 | 415 | Tr305×6 | 190 | |
| FY-CLL-500T-150 | 500T | 150 | 480 | 415 | Tr305×6 | 190 | |
| FY-CLL-500T-200 | 500T | 200 | 530 | 415 | Tr305×6 | 190 | |
| FY-CLL-500T-300 | 500T | 300 | 630 | 415 | Tr305×6 | 190 | |
| FY-CLL-600T-50 | 600T | 50 | 395 | 445 | Tr330×6 | 215 | |
| FY-CLL-600T-150 | 600T | 150 | 495 | 445 | Tr330×6 | 215 | |
| FY-CLL-600T-200 | 600T | 200 | 545 | 445 | Tr330×6 | 215 | |
| FY-CLL-600T-300 | 600T | 300 | 645 | 445 | Tr330×6 | 215 | |
| FY-CLL-800T-50 | 800T | 50 | 455 | 525 | Tr380×6 | 255 | |
| FY-CLL-800T-150 | 800T | 150 | 555 | 525 | Tr380×6 | 255 | |
| FY-CLL-800T-200 | 800T | 200 | 605 | 525 | Tr380×6 | 255 | |
| FY-CLL-800T-300 | 800T | 300 | 705 | 525 | Tr380×6 | 255 | |
| FY-CLL-1000T-50 | 1000T | 50 | 495 | 580 | Tr430×6 | 295 | |
| FY-CLL-1000T-150 | 1000T | 150 | 595 | 580 | Tr430×6 | 295 | |
| FY-CLL-1000T-200 | 1000T | 200 | 645 | 580 | Tr430×6 | 295 | |
| FY-CLL-1000T-300 | 1000T | 300 | 745 | 580 | Tr430×6 | 295 | |
| FY-CLL-1000T-500 | 1000T | 500 | 945 | 580 | Tr430×6 | 295 |








